사업개요
입지환경
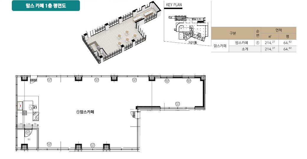
상품안내
배치도
타입안내
커뮤니티
조감도/투시도
프리미엄
방문예약
부정클릭감시중
상품안내
배치도
타입안내
커뮤니티
조감도/투시도
문자 상담 문의
X
담당자에게 문자 전송
개인정보 수집/이용 동의
[보기]
전송
이용기간이 만료되었습니다.